Contact us

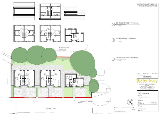
The site, we understand, has an area of approximately 0.09 hectares (0.22 acres). It has an approximate frontage to Knockhall Chase of approximately 47m and depth of approximately 20.9m. Knockhall Chase comprises a variety of terraced and semi-detached housing within the road and within the immediate vicinity. The junction with Eynsford Road is immediately opposite where Knockhall Primary School can be found.

The premises are situated in Knockhall Chase, Greenhithe, which is just to the south of the River Thames and to the north of the A2. The immediate area is in residential use, but it is close to key locations such as Bluewater Shopping Centre and Ebbsfleet International Station, and so enjoys a strategic location amongst an area zoned for growth with excellent communications and amenities close by.

Download the floorplan